Φωτογραφία Κ.Β., 2000.

"Κατασκευασμένη" ύπαιθρος και περιστεριώνες στη Τήνο
Το ανοιξιάτικο τοπίο της τηνιακής ενδοχώρας χαρακτηρίζεται από τέσσερα στοιχεία: τους αναβαθμούς, τους περιστεριώνες, τα μικρά αγροτόσπιτα-αποθήκες και το δίκτυο των ρεμάτων. Στην αεροφωτογραφία φαίνεται η μεγάλη πυκνότητα των περιστεριώνων, τα διακοσμητικά - χρηστικά τους στοιχεία, η γεωμετρία των αναβαθμών και η πυκνή βλάστηση στην κατάληξη των ρεμάτων.
Τα αναρίθμητα "σκαλιά", τα άνδηρα με τους αναλημματικούς τοίχους που "κατασκευάζουν" τα τοπία της Τήνου, προδίδουν πολυπληθή ανθρώπινη παρουσία και μόχθο αιώνων (βλ. Εικόνα 1). Με τον τρόπο αυτό οι κάτοικοι του νησιού κατάφεραν να δαμάσουν ένα κακοτράχαλο, ελάχιστα γόνιμο ορεινό τοπίο και να ικανοποιήσουν τις αυξημένες ανάγκες διατροφής τους.
Τα πετρώματα του νησιού διακρίνονται σε τρεις κατηγορίες, με ιδιαίτερα χαρακτηριστικά και συμπεριφορά (υδραυλική και μηχανική). Την πρώτη κατηγορία, η οποία συνθέτει το 70% περίπου του νησιού, απαρτίζουν μεταμορφωμένα πετρώματα μεσοζωικής ηλικίας, με κυρίαρχα το σχιστόλιθο και το μάρμαρο, υλικά που σημάδεψαν για αιώνες τη ζωή στο νησί, αφού προσφέρονται για εύκολη χρήση στη δόμηση το πρώτο, και για εμπορική και καλλιτεχνική αξιοποίηση το δεύτερο (στρώσεις δαπέδων, αρχιτεκτονικά μέλη, ύλη γλυπτικής). Η δεύτερη κατηγορία είναι τα μαγματικής προέλευσης πετρώματα, όπως είναι οι σερπεντινίτες και οι οφειτασβεστίτες - τα πράσινα τηνιακά μάρμαρα - καθώς και οι γρανίτες, όπως αυτοί του Βωλάξ και του Φαλατάδου. Η τρίτη κατηγορία αποτελείται από τα σύγχρονα ιζήματα, τα οποία είναι προϊόντα διάβρωσης και αποσάθρωσης άλλων γεωλογικών σχηματισμών. Από τις παραχειμάρριες αποθέσεις αυτών των πετρωμάτων δημιουργήθηκε και η πεδιάδα της Κώμης-Καλλονής, η οποία θεωρείται το περιβόλι της Τήνου.
Γενικά το μεγαλύτερο μέρος των πετρωμάτων του νησιού εμφανίζει έντονη αποσάθρωση με αποτέλεσμα να σχηματίζεται ένα παχύ στρώμα εδάφους, το οποίο ο άνθρωπος προστατεύει με τις αναβαθμίδες (πεζούλες). Παράλληλα η σύσταση του υπεδάφους της Τήνου παρουσιάζει διακλάσεις, ρωγμές, μεγάλες διαρρήξεις και πολλών ειδών ασυνέχειες, που επιτρέπουν την υδροφορία. Έτσι ο τόπος έχει πολλές, οι περισσότερες μικρής δυναμικότητας, πηγές.
Το τοπίο της υπαίθρου στην Τήνο αποτελεί κορύφωση μιας διαδικασίας κοινής σε όλες τις Κυκλάδες: τη συνεχή παρέμβαση του ανθρώπου στη φύση, που έχει ευεργετικά για τον ίδιο, αλλά και για το φυσικό περιβάλλον, αποτελέσματα (βλ. Εικόνα 2). Πρόκειται για μια κοινωνική διαδικασία οργάνωσης του χώρου της καθημερινής ζωής, ένα συστατικό της αγροτικής οικονομίας. Ένα πολιτισμικό αποτέλεσμα, ένα αποτύπωμα, που έχει διαμορφωθεί εδώ και αιώνες και έχει τις ρίζες του στην αρχαιότητα. Από τότε οι κάτοικοι της Τήνου έδωσαν αυτή τη μορφή στη γη ώστε να συγκεντρώσουν το πολύτιμο νερό της βροχής, δημιουργώντας έτσι φυσικές δεξαμενές νερού και παράλληλα επιφάνειες κατάλληλες για καλλιέργεια.
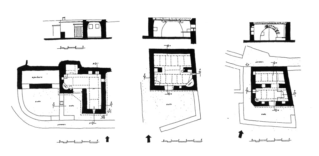
Μπορούμε να χαρακτηρίσουμε το αγροτικό τοπίο της Τήνου ως κατ' εξοχήν "ανθρωπογενές", γιατί ο άνθρωπος το "κατασκεύασε" με τα υλικά που του "έδωσε" η φύση, έτσι ώστε να μπορέσει να επιβιώσει: να καλλιεργήσει το χωράφι του, να βοσκήσει τα ζώα του, να φτιάξει το σπίτι του και να κατοικήσει. Παράλληλα όμως το τοπίο της υπαίθρου στην Τήνο είναι και "αρχιτεκτονημένο", γιατί είναι μια σύνθεση από κατασκευές με γλυπτική αξία στο χώρο. Στοιχεία που την αποτελούν είναι, εκτός από τα σκαλιά ή τράφους (αναγραμματισμός της λέξης τάφρος), και τα πολυάριθμα αγροτικά κτίσματα (βλ. Εικόνα 3), σκόρπια στις πλαγιές των βουνών: στάβλοι, αχυρώνες, ρακιζιά, αλώνια, πατητήρια (βλ. Σχήμα 1) κ.ά., με κυρίαρχο ανάμεσα σ' όλα το αγροτικό σπίτι, άλλοτε κρυμμένο για να μην δίνει στόχο, άλλοτε να προβάλλει σεμνά μέσα στο τοπίο, πάντα όμως ενταγμένο με θαυμάσιο και υποδειγματικό τρόπο σ' αυτό. Είναι όλα έργα απλών ανθρώπων, φτιαγμένα με πολύ μόχθο, αλλά και μεράκι.
Ιδιαίτερη θέση ανάμεσα σ' αυτά τα διάσπαρτα κτίσματα της υπαίθρου κατέχουν οι περιστεριώνες, κατασκευές απόλυτα χρηστικές, άρτιας τεχνικής εκτέλεσης και υψηλής αισθητικής, που αποτελούν και χαρακτηριστικό γνώρισμα του τηνιακού τοπίου. Οι περίπου 1.000 περιστεριώνες σε όλο το νησί (βλ. Σχήμα 2), βρίσκονται κατά συστάδες μέσα στα χωράφια, όπου υπάρχει τροφή, και σε ρεματιές, "για να έχουν πέταγμα τα περιστέρια". Είναι κτίσματα διώροφα με ορθογώνιες απλές κατόψεις, κατασκευασμένα από πέτρα (βλ. Σχήμα 3). Σε δύο κυρίως στάθμες είχαν ισόγειο που χρησίμευε ως στάβλος ή αποθήκη, ενώ ο όροφος ήταν καθαρά ο χώρος συγκέντρωσης των περιστεριών (βλ. Εικόνες 4 και 5). Η διακόσμηση των εξωτερικών τους όψεων με περίτεχνα διακοσμητικά στοιχεία από σχιστόπλακα συμβάλλει στην ιδιαίτερη παρουσία τους στο χώρο του Αιγαίου, αναδεικνύοντας τα ταπεινά και χρηστικά αυτά κτίσματα σε μικρά αριστουργήματα (βλ. Εικόνα 6).
Οι περιστεριώνες αποτελούσαν τον κρίκο μιας αλυσίδας του αγροτικού οικοσυστήματος, η λειτουργία της οποίας αποτελεί υπόδειγμα βιώσιμης χρήσης των τοπικών δεδομένων: κτισμένοι με ντόπια πέτρα, στέγαζαν τα περιστέρια, τα οποία τρέφονταν από τα υπολείμματα της σοδειάς που υπήρχε στα γύρω χωράφια, τα οποία λιπαίνονταν από την κοπριά των περιστεριών, τα οποία εξέτρεφε ο άνθρωπος για το κρέας τους, και, τέλος, λειτουργούσαν ως τοπόσημα στον αγροτικό χώρο.
Κατασκευασμένοι κυρίως τον 18ο και 19ο αιώνα, περίοδο οικονομικής άνθησης για το νησί, οι περιστεριώνες έχουν ενετική προέλευση και είναι χαρακτηρισμένοι από το 1984 ως "έργα τέχνης που χρειάζονται ειδική προστασία". Η σημερινή τουριστική ανάπτυξη χρησιμοποιεί επιλεκτικά κάποια μορφολογικά τους στοιχεία, δημιουργώντας ένα ψευτο-λαϊκό σκηνικό (βλ. Εικόνα 7).
ΕΝΔΕΙΚΤΙΚΕΣ ΠΗΓΕΣ
Βαλιάνου, Δ., Βώκου, Δ. (1986) Οι περιστεριώνες της Τήνου, Αθήνα: Ερίννη.
Καραλή, Μ. (2002) Οι αγροτικές κατοικίες στην Εξωμεριά της Τήνου, Αθήνα: Πολιτιστικό Τεχνολογικό Ίδρυμα ΕΤΒΑ.
Καραλή, Μ. (επιστ. υπεύθ.) (2003) Αναγνώριση της πολεοδομικής, αρχιτεκτονικής και πολιτισμικής φυσιογνωμίας της νήσου Τήνου και διερεύνηση του υφιστάμενου θεσμικού πλαισίου προστασίας, Ερευνητικό Πρόγραμμα, Υπουργείο Αιγαίου - ΕΜΠ, Αθήνα.